广佛喝茶资源,一线天同城平台,上海喝茶外卖微信wx,全国少女空降200全国空降少女app

您好,欢迎进入河南省中原奥起实业有限公司官方网站!

与时俱进,诚赢客户

龙门吊、提梁机、门式起重机生产厂家

服务电话:13782575673

门式起重机

您现在所在位置:首页>>起重产品>>门式起重机>>MHZ型电动葫芦抓斗门式起重机

MHZ型电动葫芦抓斗门式起重机

本文链接:http://www.ftbamj.cn/msqzj/1326.html???发布时间:2022-01-20 10:46:09??点击量:6737

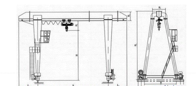
  MHZ型电动葫芦抓斗门式起重机产品简介

  MHZ型电动葫芦抓斗门式起重机与CD型电葫芦及抓斗起重机配套设施应用,是一种有轨运作的中小型吊车,适用吊重5-10吨,适用跨距12-30米,办公环境-20℃-40℃中间。本商品为一般主要用途起重设备,多用以户外场地及库房的装卸搬运或爬取原材料,本商品有路面控制和房间内控制二种形式。

MHZ型电动葫芦抓斗门式起重机

  MHZ型电动葫芦抓斗门式起重机结构图

MHZ型电动葫芦抓斗门式起重机结构图

  MHZ型电动葫芦抓斗门式起重机参数图

MHZ型电动葫芦抓斗门式起重机参数图

文章聚合页面: MHZ型 电动葫芦 门式起重机

联系我们

CONTACT US

联系人:徐经理

手机:13782575673

电话:0373-8611375

邮箱:hnzyaqqz@126.com

官网:www.ftbamj.cn

地址:河南长垣起重工业园区华豫大道中段