广佛喝茶资源,一线天同城平台,上海喝茶外卖微信wx,全国少女空降200全国空降少女app

您好,欢迎进入河南省中原奥起实业有限公司官方网站!

与时俱进,诚赢客户

龙门吊、提梁机、门式起重机生产厂家

服务电话:13782575673

门式起重机

您现在所在位置:首页>>起重产品>>门式起重机>>L型电动葫芦门式起重机

L型电动葫芦门式起重机

本文链接:http://www.ftbamj.cn/msqzj/1359.html???发布时间:2022-01-21 10:53:10??点击量:7567

  L型电动葫芦起重机产品简介

  L型电动葫芦门式起重机与CD1单速电动葫芦或MD1型单速电葫芦配套设施应用,是一种有轨运作的小型吊车,适用吊重5-10吨,跨距16-30米。办公环境-20-+40℃。

  L型电动葫芦门式起重机为一般主要用途起重设备,适用室外工作的固定不动跨间,装卸搬运或爬取原材料。有路面实际操作和房间内实际操作二种方法。远程服务器严禁吊装易燃易爆物品。

L型电动葫芦门式起重机

  L型电动葫芦起重机结构图

L型电动葫芦起重机结构图

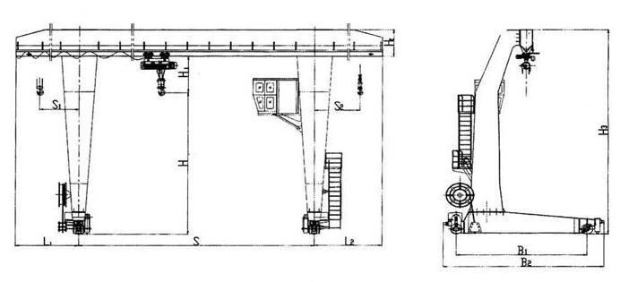
  L型电动葫芦起重机基本技术参数图

L型电动葫芦起重机基本技术参数图


文章聚合页面: L型 门式起重机

联系我们

CONTACT US

联系人:徐经理

手机:13782575673

电话:0373-8611375

邮箱:hnzyaqqz@126.com

官网:www.ftbamj.cn

地址:河南长垣起重工业园区华豫大道中段