广佛喝茶资源,一线天同城平台,上海喝茶外卖微信wx,全国少女空降200全国空降少女app

您好,欢迎进入河南省中原奥起实业有限公司官方网站!

与时俱进,诚赢客户

龙门吊、提梁机、门式起重机生产厂家

服务电话:13782575673

起重机产品问答

您现在所在位置:首页>>起重资讯>>起重机产品问答

欧式起重机小车的典型结构形式

本文链接:http://www.ftbamj.cn/cjwt/514.html???发布时间:2021-03-03 02:07:53??点击量:1796

  低净空小车介绍

  低净空小车(图3-26)由起升机构、小车运行机构、小车横梁、小车架、小车附件构成。当起升机构的起升电机大于45kW时,起升机构就不能再采用小欧式起重机的“三合一”起升电机,而只能采用分离式的独立电机。当然,这只是针对国内起升电机的性能局限的无奈之举,其传动路线是:电机→齿轮联轴器→短浮动轴→盘式制动轮→盘式制动器→带联轴器的浮动轴(可省)→卧式硬齿面减速箱→卷筒→钢丝绳→欧式吊钩组(双排动滑轮)→小车横梁的定滑轮。设计的关键是把起升机构的卷筒、电机、减速器、制动器等零部件沉到小车架平面以下的合适部位,小车横梁和卷筒之间的间隙需要考虑计算卷筒和滑轮的出绳*大偏角以及卷筒的钢丝绳压板螺栓不与起升机构旋转零件发生干涉,减速器、电机和制动器位置的布置需要整体考虑,互不干涉。外购件选型对起升机构的布置非常重要,目前,还没有特制的外购件核心零部件产品,需要根据外购件的体积、外观、价格、品质综合考虑小车的设计。

  对(大于300t)大欧式小车还可以采用单(双)电机与双减速器驱动起升机构(图3-27),双电机功率推荐按铸造吊的方法取总机功率的0.66倍选型计算。为了保持小车的紧凑布置,制动器宜选取单制动的盘式制动器(除用户特别指明采用双制动外)。这样布置的小车能使主、副端梁上的车轮轮压易接近平衡,小车运行更加平稳,减速器能选择标准型号而节约设计成本。

  综合以上介绍,低净空小车除了具有类似小欧式起重机的特点外,还有独自的结构和机构特点。

  (1)可以全部采用国产零部件和元器件布置小车,性价比非常好;

  (2)起升机构的零部件衔接到小车架平面以下的合适位置,机构紧凑;

  (3)小车主、被轮压比很接近;

  (4)小车运行噪声低、节能环保;

  (5)小车架整体加工,组装精度高;

  (6)小车吊钩左右极限距离较小,工作面域较大;

  (7)小车的整体高度较小,节约厂房土建成本;

  (8)结构紧凑、新颖、美观、重量轻、空间体积小。

  带副钩的欧式小车介绍

  欧式小车的副起升机构一般都是通过带拖车的副小车型式来考虑设计(图3-28)。主起升机构布置在主小车上,副起升机构通过挂一个拖车的型式和主小车铰接。这种结构型式的优点是可以制作成??榛牟考?,组合副钩灵活方便;缺点是结构体积大、运行冲击强烈,维修率较高。

  笔者通过对小、中欧式(低净空)起重机多年的研究,研发出整体式带副钩的小车(图3-29)。5~50t小欧式小车带副起升,一般采取小欧式加小欧式的小车型式;63~300t的中欧式(低净空)小车带副起升,一般采取低净空加低净空(或加小欧式)的小车型式(图3-30)。整体式带副钩的小车设计按常规布置,小车架会非常的长,小车的轮压分布难以设计均匀,既主、被轮的位置不好布置,需反复调整卷筒和小车横梁的位置才能确定。此外,在主钩空载的时候被动轮的轮压反而会比主动轮的轮压要大,在设计时需要平衡考虑各机构的主次关系。

  综合以上介绍,带副钩的欧式小车具有以下特点。

  (1)在保证小车的整体高度较小的前提下,还能保证小车的长度较短;

  (2)副起升机构一般为小欧式结构;

  (3)依然保证小车主、被轮压非常接近;

  (4)具有低净空的大多数优点。

  采用双制动器(工作级别A6以上)的大欧式小车介绍

  小欧式小车一般只能达到A5级别,主要因为起升制动器(制动单元)放在电机尾部,这种“三合一”起升电机不是起重用的专用电机,为连续制工作电机,而起重机专用电机是断续制工作电机,用在A5级别以上的工况不太适合。此外,国内传统习惯对A5级别以上的起升机构设置两个制动器,制动器直接放在减速器的输入轴上。

  《起重机设计规范》(GB 3811—2008)规定可以在A6以上级别的桥式起重机采用单个制动器(特殊起重机除外),但制动**系数取值有规定,没有具体明确是否必须只能用单制动器。许多用户都有采用双制动器的习惯,在订货时经常明确指出,对A6级别的起重机要采用双制动器。因此,对A6级别的中、大欧式小车,主要考虑满足用户的习惯,按单、双制动器分类设计,对明确规定采用双制动器的用户有一个产品系列补充。双制动小车推荐每个制动器的**制动系数取1.1,对没有明确规定采用双制动器的用户,按新规范要求,A6级别的单个制动器的**制动系数取1.75。

  中、大欧式小车按卷筒支承座衔放在小车端梁的腹板上布置起升机构,不好直接将制动器布置在起升减速器的输入轴上,主要是受小车架结构的限制,但通过改进小车的结构,也能把制动器直接布置在减速器的输入轴上。按中厚板支承卷筒座可以直接布置在减速器的输入轴上,但小车整体高度较高,需考虑用户大车轨道*厂房*低极限距离的影响。

  笔者在多年欧式产品设计实践中,通过反复改进结构和分析计算结构的受力,采用两种新的结构型式把制动器直接放置在减速器的输入轴上,产品使用效果非常好,外表美观、制动平稳,没有溜钩现象发生,维护、维修也非常方便。

  一种是在小车的主端梁上减速器输入轴的小车端梁腹板位置开槽,同时加固局部(图3-31);一种是把制动器放在改进的小车端梁里面,同时加固局部(图3-32)。采用哪种结构型式需要根据起重量的吨位和起升速度的大小来决定。

  用于抬吊双小车的中欧式小车介绍

  中欧式(低净空)小车非常适合一种双小车抬吊的工况,双小车分双钩和三钩两种结构型式,由主小车和副小车共同完成抬吊工作,也可以由主、副小车单独完成额定起重量的起吊工作。主小车的*大起重量一般是副小车的2倍,有时副小车比主小车的一半要大,其*大起重量一般按主小车额定起重量的1~1.3倍设置。主小车可以带副钩,也可以不设副钩,其主副小车的起重量匹备关系见表3-9。对32t、40t、50t的副小车可以设计成小欧式小车结构,其他主、副小车按中欧式(低净空)小车设计。
表3-9主、副小车起重量的匹配关系

表3-9主、副小车起重量的匹配关系

  三钩双小车起重机的特点主要是吊物移动平稳,主小车由“低净空加低净空”两组起升机构组成。为了保持小车轮压平衡,减速器需对称布置,电机平行摆放,依然保持低净空起重机的特点。此外,三钩双小车结构的吊钩距大车轨道侧的极限距离相对偏大,其他和低净空小车结构一样。副小车由一个不带副钩的低净空小车构成,可根据用户对抬吊物品的间距要求,选择小车横梁摆放在靠近或远离主小车位置,副小车轨距必须按照主小车轨距设计。

  低净空双小车起重机尤其适合造船行业厂房用的造船桥式起重机,对传统造船桥式起重机采用“欧式”设计具有非常潜在的实用价值。既可以采用两个主、副吊钩抬吊(图3-33),也可以采用双钩与单钩组合的三钩抬吊(图3-34);还可以设计成360°穿绕翻身的造船桥式起重机抬吊。

  综合以上介绍,中欧式(低净空)双小车具有以下特点。

  (1)可以完成抬吊、单吊多种工况的作业,操作灵活方便;

  (2)保持了小欧式起重机的大多数特点。

  用于360°穿绕翻身(造船专用)双小车的中欧式小车介绍

  造船厂房室内用双小车桥式起重机(图3-35),既可以用于抬吊,也可以用于单吊作业,还可以用于抬吊穿绕翻身作业,一般用副小车单吊作业,用主、副小车共同参与抬吊或穿绕翻身作业。为了满足穿绕翻身,由上下两层轨道的上(主)、下(副)小车构成。在抬吊的时候,上小车降下吊钩,下小车起升吊钩,同时移动下小车穿过上小车翻身。主要用于造船的分段翻身作业,主机的工作级别宜设计为A5~A6,其大车的断面型式(图3-36)

  在主梁靠大车里侧的靠下部位设置副梁承担副小车的工作载荷,主梁宜设计成窄全偏轨梁结构,主小车轨道设置在外端的主腹板上,主梁的截面宽高比,推荐取1/3.5~1/3,主梁的主腹板向里倾斜4°~6°,副梁根据副小车的额定起重量设计副梁高度,副小车轨道设置在里端的副梁主腹板上。

  用传统的行车方式布置和设计主小车,整体高度较大,使大车轨道面*厂房高度界限的距离hmin较大,从而增大厂房的土建成本。主小车采用低净空型式,将会使主小车机构布置紧凑,整体高度变得较小,在改进大车端梁结构的前提下,可使hmin值降低2~3m。副小车采用低净空型式,机构布置紧凑,能使大车主梁得到*大优化,减轻整机重量。副小车是否采用低净空型式,要看设计的主、副梁能否设计布置下副小车。如果需要加高主梁的高度布置副小车,采用低净空副小车会使整机*优化,设计*合理,重量*轻。主、副小车的翻身工作过程见图3-37。

  采用低净空形式的造船桥式双小车起重机主小车起升机构(图3-38),根据用户要求可采用双制动或单制动,其他机构布置和低净空小车设计一样。为了降低小车承载端梁的截面高度,减轻小车架的重量,把小车横梁布置在靠近小车车轮中心线的区域位置,选择大中心距的非标硬齿面减速器,保证满足减速器的输入轴到减速器的输出轴有足够间距布置卷筒组和小车横梁,能很好地减轻小车重量。此外,钢丝绳的倍率尽量选小值,优先选择**知名品牌8股芯钢丝绳,使卷筒长度设计较短,小车重量较轻。

  欧式抓斗桥式起重机的小车介绍

  抓斗起重机有简易和四绳抓斗两种型式,简易抓斗是在吊钩上挂着一个马达抓斗,抓斗小车和普通桥式小车一样。四绳抓斗小车(图3-39)由一组卷筒组用作升降作业,另一组卷筒组用做开闭动作。传统的四绳抓斗小车没有定滑轮组缠绕,钢丝绳的倍率为1,抓斗自身带有倍率滑轮组,小车整体高度较高,结构布置松散,重量较重。

  欧式抓斗小车(图3-40),由起升机构、小车运行机构、小车架和小车附件组成,没有小车横梁,相当于两组没有横梁的小欧式小车结构。

  室内使用的抓斗桥式起重机的抓斗容积重量不会很大,一般不会超过20t(带抓斗重量),各机构电机功率一般不会超过45kW,用小欧式小车结构布置闭合绳和支持绳机构非常方便。对用户有特殊要求的抓斗起重机,当功率大于45kW时,可采用两组没有横梁的低净空小车结构布置设计闭合绳和支持绳机构。

  大欧式(双梁四轨)小车介绍

  对大于300t的大欧式起重机,如果全部按低净空的思路来设计小车,会遇到小车轮压难以减小的矛盾。如果按常规增加车轮数量的方法,势必会使车轮数量增多,同时还需要借助台车和大、小平衡梁的结构组合,才能设计出小车,使小车设计较长,同时也会使小车高度增大,小车架重量增加,违背欧式小车轻量化设计原则。此外,小车的吊钩极限距离也会增大。采用双梁四轨欧式小车设计能很好地解决以上弊端,是大欧式小车设计的理想选择。

  大欧式双梁四轨小车(图3-3)由小车运行机构、小车起升机构、小车横梁、小车架构成。小车起升机构、小车横梁的设计和中欧式双梁双轨小车一样;小车运行机构、小车架与中欧式双梁双轨小车的设计有较大的区别。主要是结构的受力不在同一个平面上,而是在一个紧凑的空间内,但受力分布依然保持左右对称,这样设计小车有利于结构和机构的计算简化和布置。

  大欧式(双梁四轨)小车的工作原理

  大欧式(双梁四轨)小车的工作原理见图3-41。小车架和车轮群台车通过球铰支座连接,两边的车轮群台车在不同的轨道高差平面上分别运行(高度差相差微小),使车轮群台车随机的左右偏斜,始终使车轮群里一组不同截面的4个车轮*少有3个车轮接触主、副轨道;主副轨道之间的水平公差在规范范围许可之内由水平轮组之间的间隙调节,多轨的高度差由球铰支座平衡调节。
图3-41超欧式(双梁四轨)小车的工作原理

图3-41超欧式(双梁四轨)小车的工作原理
1—小车架;2—球铰支座;3—车轮群台车;4—主轨道;5—副轨道;6—水平轮组

  小车运行的平行4根轨道由于受水平旁弯和轨道安装的影响,轨道安装公差比双梁双轨更复杂,需解决由此带来以下三个方面的实际问题。

  (1)运行中保持多轨上的所有车轮持有水平间隙

  4轨同截面上的车轮水平间隙(图3-42),可以参照双梁双轨的规范要求,全偏轨轨道安装公差参见《桥式和门式起重机制造及轨道安装公差》(GB/T 10183—2005),中轨轨道安装公差参见《通用桥式起重机》(GB/T 14405—2011)。各轨道之间的水平公差要求为

  Δ23≤+7~+1mm;Δ14≤+7~+1mm;Δ12≤+5~-5mm;Δ34≤+5~-5mm;Δ≤7.5mm

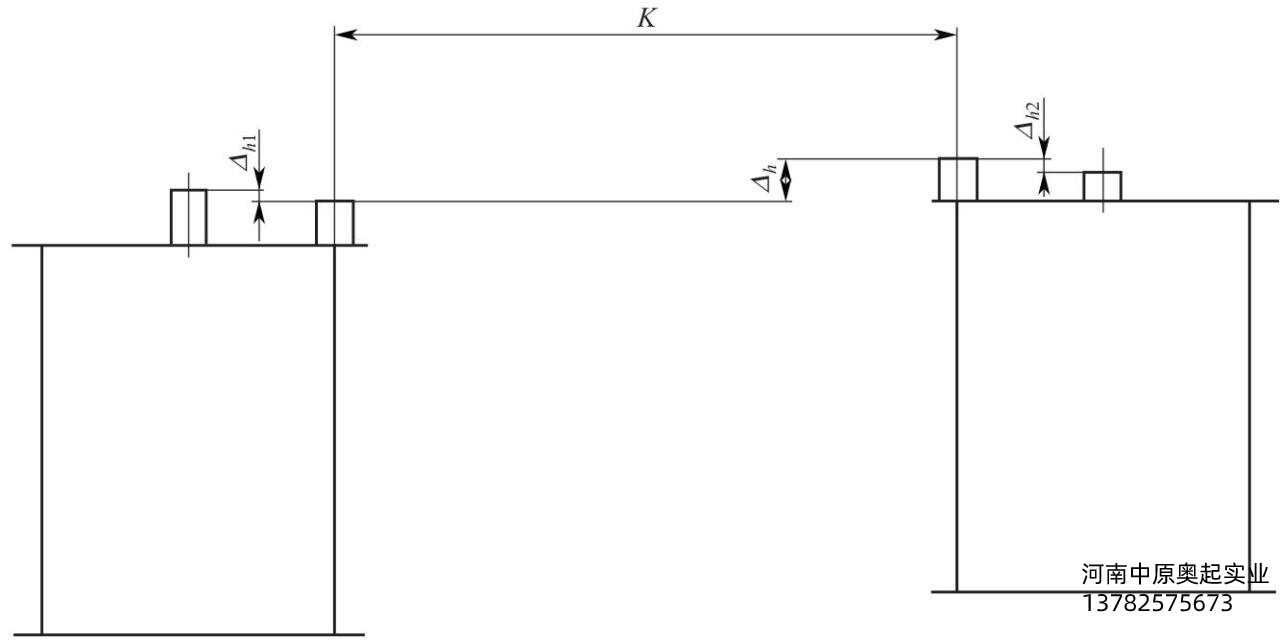
  (2)多轨高度差的消化

  4轨同截面上的轨道高度差(图3-43),可以参照双梁双轨的规范要求,见上述。各轨道之间的高差要求为

  Δh1≤4.2mm;Δh2≤4.2mm;Δh≤10mm

  每边主梁上的主、副轨道高差在规范许可范围内,会使车轮群台车随机地偏斜运行,为了使左右的车轮群台车随机偏斜对小车架不产生附加约束,在车轮群台车和小车架之间设置球铰支座能消除偏斜带来的约束变形。

  球铰支座(图3-44),推荐采用LQZ球型支座,*大转角可根据用户要求设计,一般不宜超过0.08rad(4.59°),*大支反力可达到100000kN,显然支反力肯定满足要求,*大转角从(双梁四轨)小车的结构分析可以得出范围或结论。
图3-43多轨高度差示意图

图3-43多轨高度差示意图

  车轮群台车的*大偏斜角(图3-45),分三种情况考虑。**种:轨道1和轨道2或轨道3和轨道4之间因轨道高度差引起的车轮群台车的*大偏斜角α1、α3;第二种:轨道2和轨道3之间因轨道高度差引起的车轮群台车的*大偏斜角α2;第三种:轨道1和轨道4之间因轨道高度差累积引起的车轮群台车的*大偏斜角α。


图3-45车轮群台车的*大偏斜角

图3-45车轮群台车的*大偏斜角

  α≤α1+α2+α3≤2×4.59°=9.18°  (3-32)

  以小车(双梁4轨)主2、主3轨道轨距2m,主、副轨道轨距0.5m为例(罕见),计算车轮群台车的*大偏斜角α为

  α≤α1+α2+α3=0.48+0.29+0.48=1.25°

  实例计算满足要求。两主、副轨道和主轨道之间的轨距越大,*大偏斜角α越小。一般约定α≤1.6°,用于小车架(双梁4轨)和车轮群台车之间的球铰支座都能满足要求。

  (3)主、副轨道上的车轮群因轨道高差引起的轮压偏差影响

  轨道高度差累积引起车轮群台车运行偏斜,相应侧的车轮群总轮压将会有所改变,由于车轮群台车和小车架是很小的偏斜,可以把小车架的偏斜看成绕某固定点旋转分析(图3-46)。

  在图3-46中,虚线小车位置为:

  N21×(W23+a)=R(W23+a)/2=[(Φ2Q+Φ4Gx)/2](W23+a)/2

  即  N21=N22=R/2  (3-33)

  在图3-46中,实线小车位置为:

  N12×(W23+a)=R×AD

  αmax≤1.6°→sinαmax≅0→sin2αmax≅0

  在直角△AOC中:

  直角△ABD中:








  式中 R——额定起重量和小车自重对小车的作用合力;

  N11、N12——图3-46实线位置车轮群一侧的总轮压;

  N21、N22——图3-46虚线位置车轮群一侧的总轮压。

  其他见图3-46。

  因此由轨道高差引起的轮压偏差很小,可以忽略不计。由于车轮群在运行过程中,大多数情况下一组车轮群的4个车轮只有3个车轮着轨,在计算车轮强度时推荐*大计算轮压除以一个折减系数Kz=0.75~0.8。

  大欧式(双梁四轨)小车运行机构的构成

  大欧式(双梁四轨)小车运行机构(图3-47),由“三合一”减速器、主动车轮群、被动车轮群、球铰支座微转机构、多轨台车构成。一般小车的每一个角为1/4驱动,也可以设计成1/2驱动。“三合一”减速器和双轨小车运行机构的设计和选型计算没有区别,对大欧式(双梁四轨)欧式小车,关键是双轨台车既要在水平面上能铰动,又要在垂直平面内能微小转动,采用球铰支座能够较好地解决这个问题。

  1—“三合一”减速器;2—车轮群主动轮;3—车轮群被动轮;4—球铰支座微转机构;5—多轨台车

文章聚合页面: 欧式起重机 欧式小车

联系我们

CONTACT US

联系人:徐经理

手机:13782575673

电话:0373-8611375

邮箱:hnzyaqqz@126.com

官网:www.ftbamj.cn

地址:河南长垣起重工业园区华豫大道中段