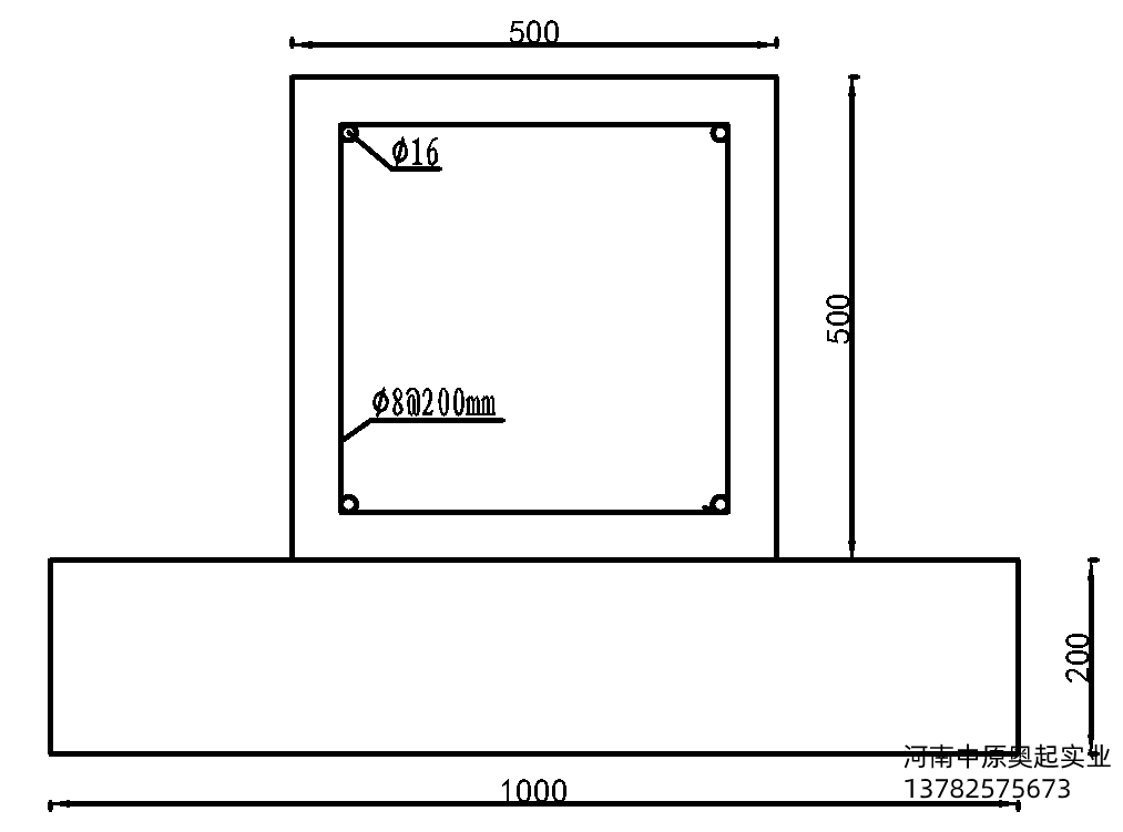
基础采用C30混凝土进行浇筑,设计尺寸如下图所示
100T龙门吊轨道基础地基承载力验算:按大梁重130T计算,加上门吊自身重量共计68T(按重的计算),单台龙门吊及承担梁体重量为130/2+68=133T??悸堑矫诺跣凶叩绕渌矫嬖黾拥暮稍厣?.5**系数,则实际受力按133T×1.5=199.5T,单台下门吊共计有4个支点,则每个支点受力为49.88T。即:489KN单支点主要受力分布在1.5m范围。

每个支点轨道基础地基受力集中面积:S=1×1.5=1. 5m2。
基础承受应力:p=499/1.5=332Kpa。
预制梁场建立在以压实成型的96区路床上,在路基成型后对地基承载力进行测试,基础底面根据实际情况进行调整。